Key Facts
- Property type
Industrial space
- Available size
61,553 SM
- Total building size
61,553 SM


Key Facts
- Property type
Industrial space
- Available size
61,553 SM
- Total building size
61,553 SM
Property features
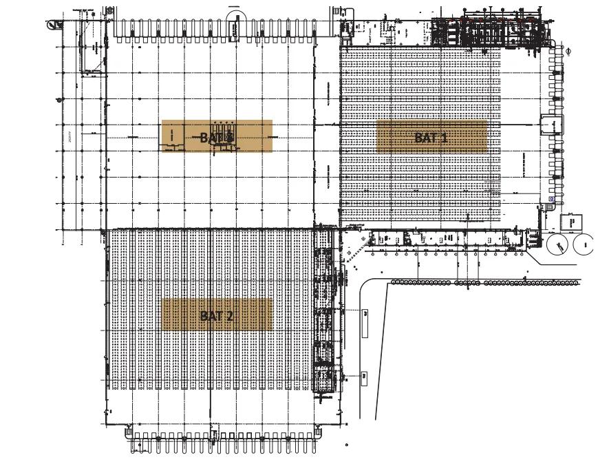
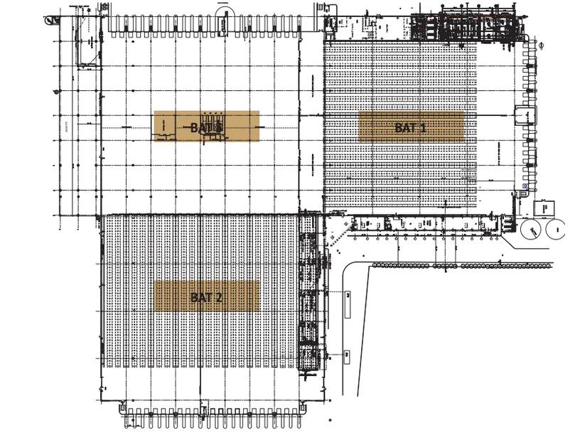
60,788 SM of warehouse space
16,132 SM of mezzanine space
4,937 SM of office space
220 m x 255 m dimensions
15.1 m to 16.0 m clear height
4.5 T/sqm floor load
35.0 m truck court depth
287 car parking spaces
Renovated in 2023
Additional information
- ICPE: 1510-1 (A), 1530-2 (E), 1532.1 (D), 2925 (D), 4331.3 (DC), 2920 (NC), 4320 (NC), 4321 (NC), 4510 (D), 4511 (NC), 2662 (E), 2663 (E)
- Available from Q3 2024 following renovation works including roof replacement, new heating system, full office retrofit and full sprinkler replacement
- High-quality Class A building 60,788 SM (incl. 4,937 SM of office space and 16,132 SM of mezzanine in the cell 3)
- Just 42km South of Paris Charles de Gaulle Airport and 40km East of Orly Airport
Photos and floorplans
Location Commentary
- The asset is just 40 km away from Paris city center through immediate access to the two-lane motorway N4, which also connects the park to the A4 highway (Strasbourg – BeNeLux)
- The Property boasts ideal locational and physical attributes with a 2022 full building refurbishment
Location
Transportation
Transit
Bus, HLM
3 min walk – 0.2 km
Bus
9 min walk – 0.7 km
Motorway
N4
1 min drive – 0.8 km
A4
15 min drive – 16.1 km
Airport
Paris Charles de Gaulle Airport
35 min drive – 43.5 km
Orly Airport
40 min drive – 75.6 km








