Kent, Washington
8041 S 228th Street
Key Facts
- Property type
Industrial space
- Available size
23,854 SF
- Total building size
42,022 SF


Key Facts
- Property type
Industrial space
- Available size
23,854 SF
- Total building size
42,022 SF
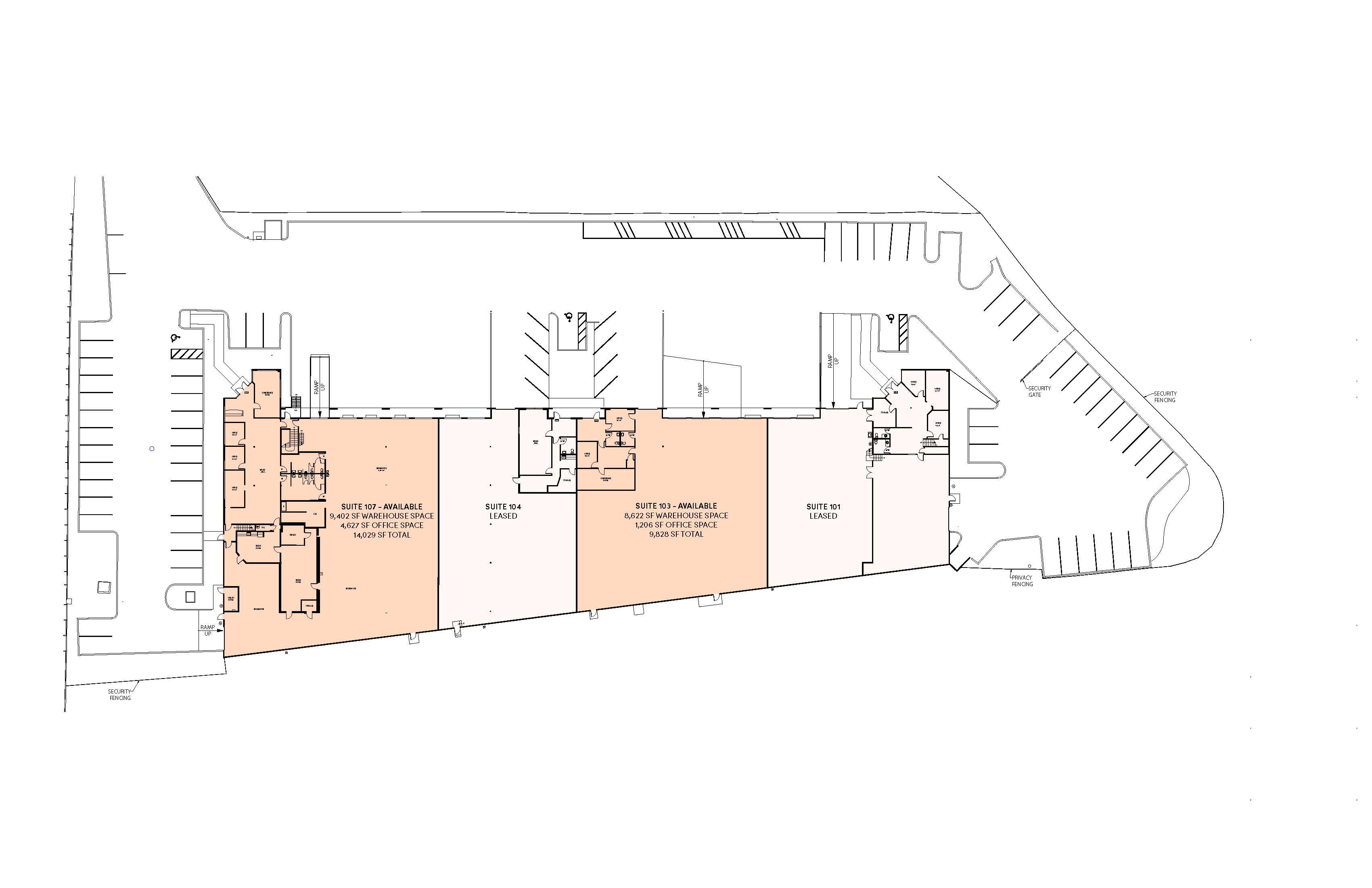
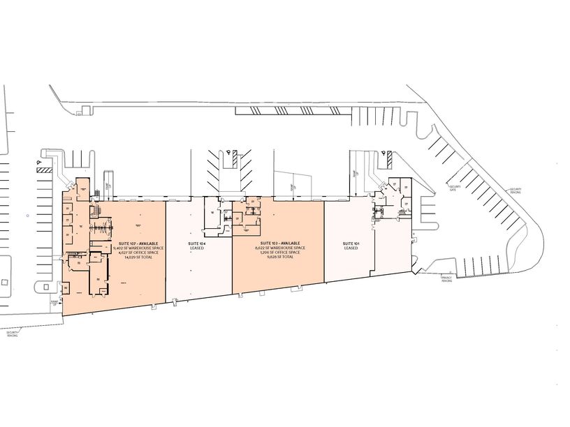
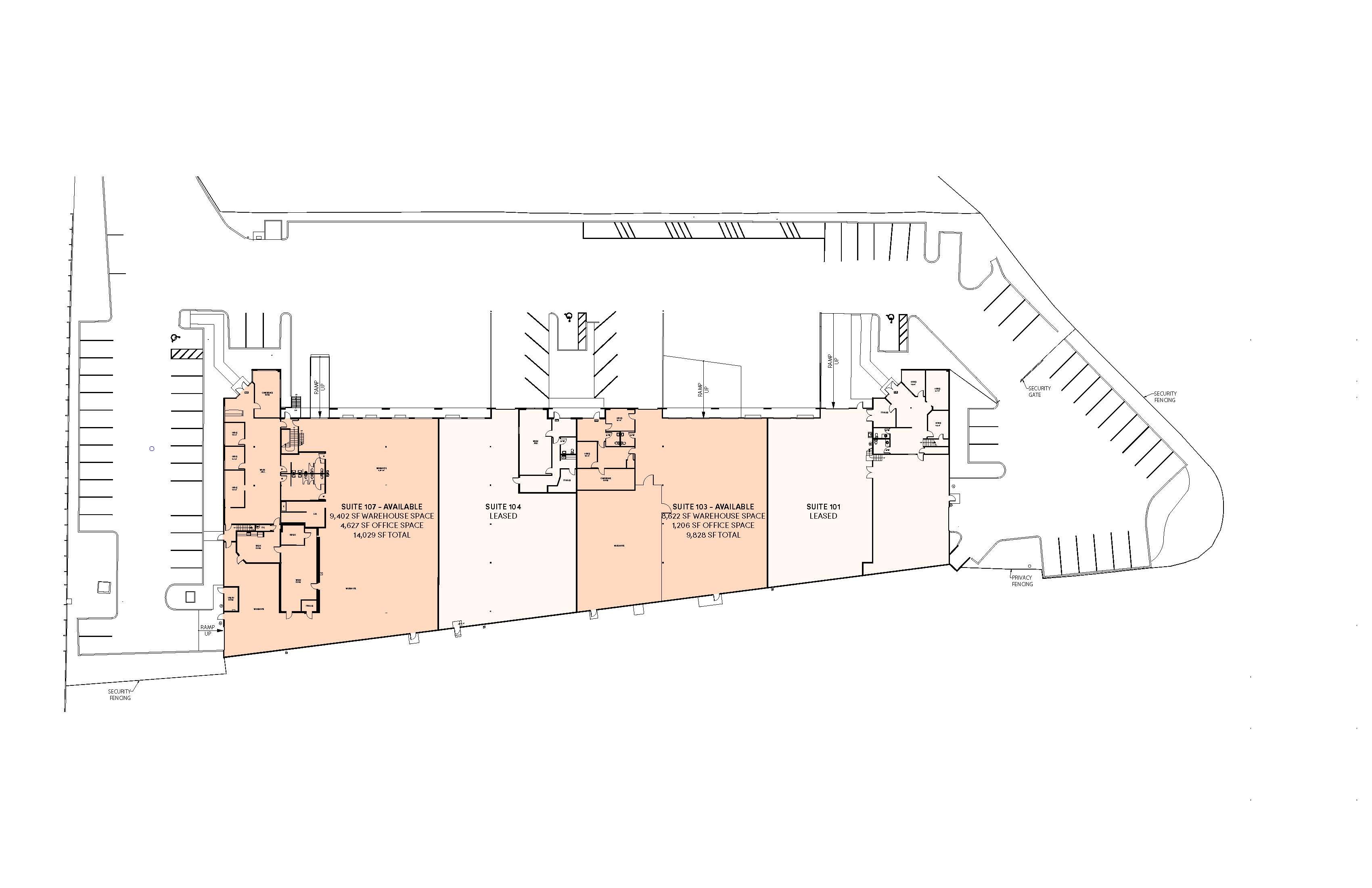
Property features
Suite 103 & 107 available
24' clear height
LED lighting
Suite 103: 9,828 Total SF
- Warehouse Space: 8,622 SF
- Office Space: 1,206 SF
- Loading: 1 GL / 4 DH (2 Edge of Dock Levelers)
- Power: 400 Amps, 277/480 Volt
Suite 107: 14,029 Total SF
- Warehouse Space: 9,402 SF
- Office Space: 4,627 SF
• Additional 3,214 SF SF of Mezzanine Office Available - Loading: 1 GL / 4 DH (2 Edge of Dock Levelers)
- Power: 600 Amps, 277/480 Volt
Photos and floorplans
Location
Population
Within 10 miles
Total Population
520,065
Total Labor Force
267,943
Median Household Income
$97,025
Warehouse Employees
4,448
High school education or higher
70.0%
Contact us
Learn more about this property or schedule a tour by reaching out to our local investment and leasing officer.




