7390 Northcourt Road
- Property type
Industrial space
- Available size
139,500 SF
- Total building size
139,500 SF


- Property type
Industrial space
- Available size
139,500 SF
- Total building size
139,500 SF
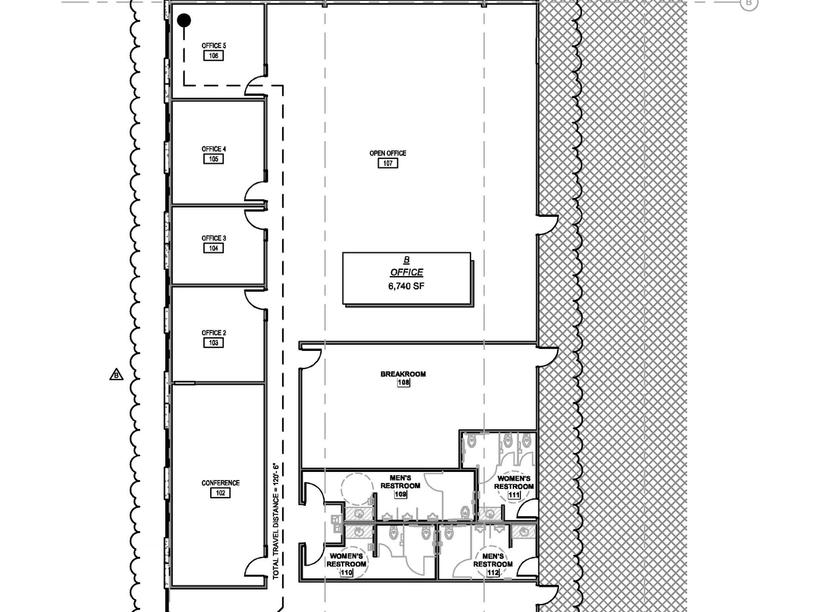
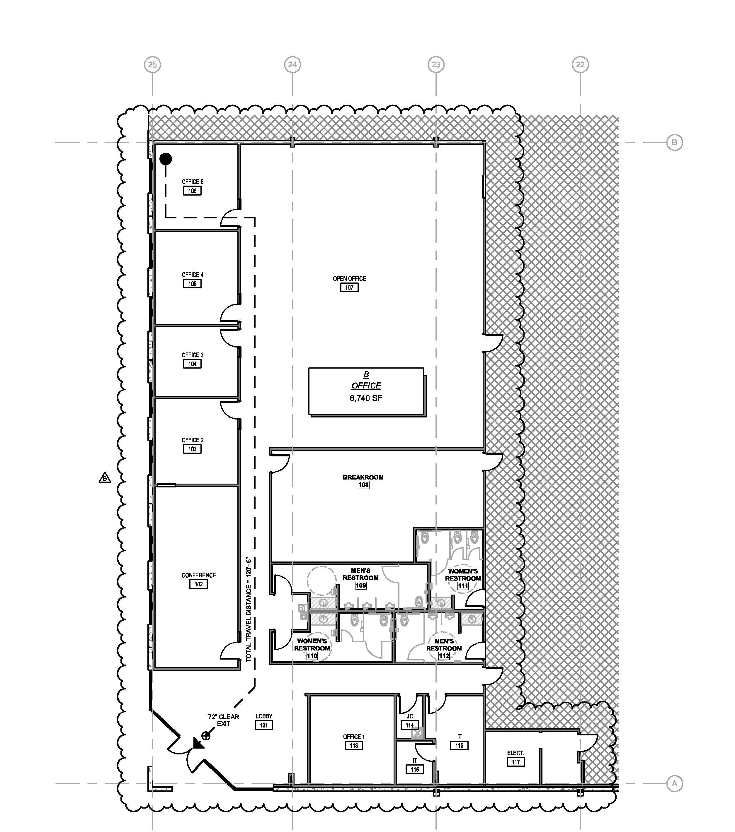
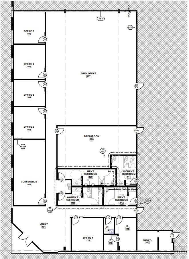
Property features
Willing to demise to 80,000 SF OR 60,000 SF
6,470 SF of office
2 oversized grade level doors
22 dock-high overhead doors (12 pit levelers, 5 edge of dock levelers)
Clear Height: 22’ at Eaves / 25’ at peak
198 parking spaces
LED Lighting to an average of 30 FC
Fenced
Built in 2006 / 2014
800 amps of power with existing capacity for 1,200 amps (able to expand beyond 1,200 amps as needed)
116’ truck court
Tilt wall construction
ESFR sprinkler system
11 HVLS fans - (7) 8’ fans, (4) 10’ fans
Property highlights
01
02
03
Photos and floorplans
Location
Population
Within 10 miles
Total Population
544,491
Total Labor Force
226,028
Median Household Income
$80,693
Warehouse Employees
2,094
High school education or higher
67.4%
Contact us
Learn more about this property or schedule a tour by reaching out to our local investment and leasing officer.










