Columbus, Ohio
2302 Wright Brothers Avenue
Key Facts
- Property type
Industrial space
- Available size
289,491 SF
- Total building size
289,491 SF


Key Facts
- Property type
Industrial space
- Available size
289,491 SF
- Total building size
289,491 SF
Property features
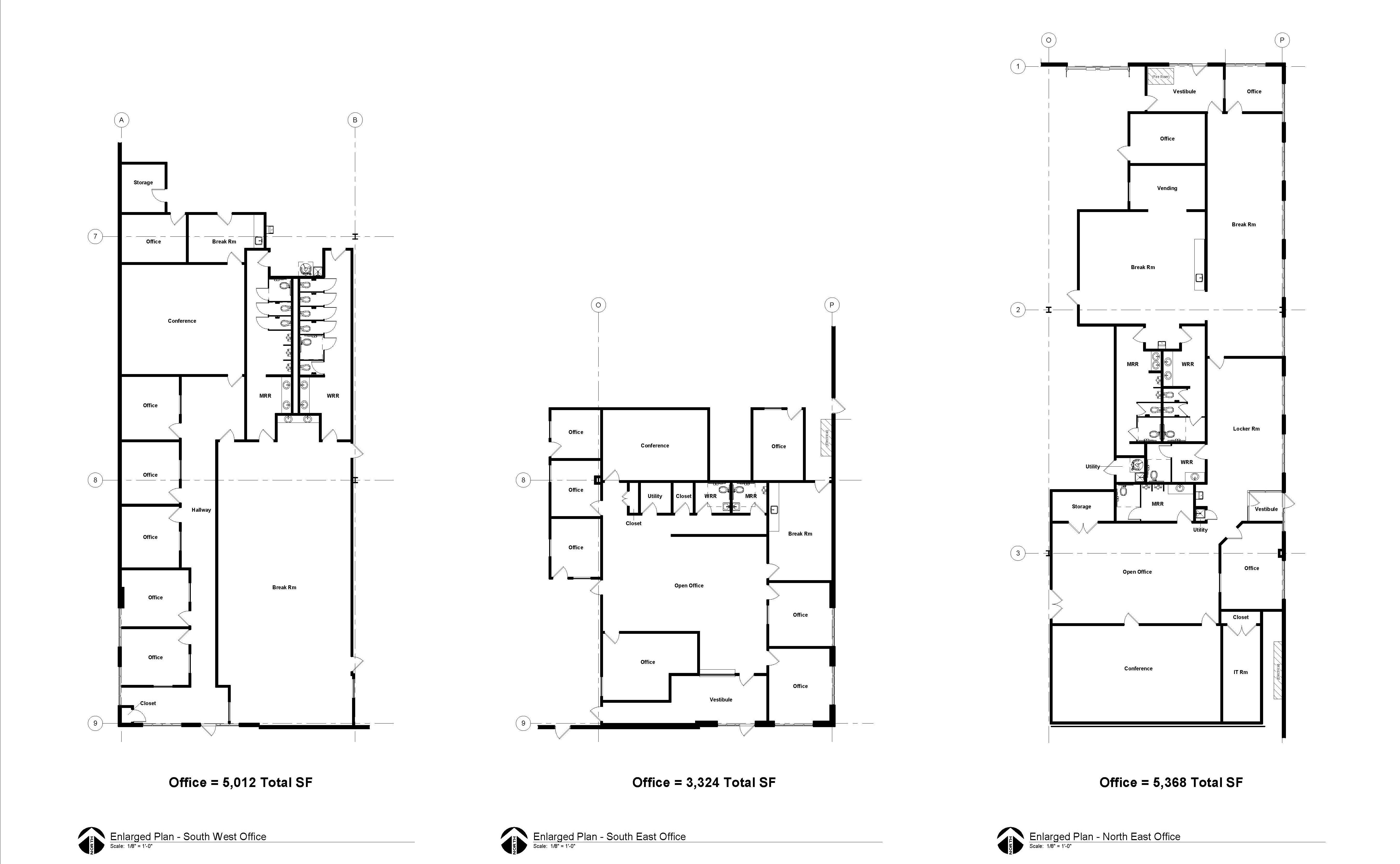
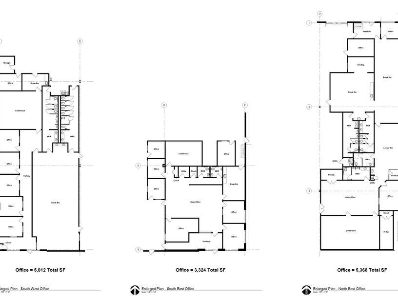
3 Office pods: 5,012 SF; 3,324 SF; 5,368 SF
28’ clear
50’ x 48’ column spacing
Cross-docked with 51 dock doors (49 w/ levelers)
5 drive-in doors
120 car parking spaces
28 trailer parking spaces
Wet pipe sprinkler system
Strategically located in the heart of Rickenbacker with great access to I-270, I-70, & I-71
Photos and floorplans
Location
Population
Within 10 miles
Total Population
215,926
Total Labor Force
92,805
Median Household Income
$63,934
Warehouse Employees
1,180
High school education or higher
67.6%
Contact us
Learn more about this property or schedule a tour by reaching out to our local investment and leasing officer.

Chris Simons




