Key Facts
- Property type
Industrial space
- Available size
Fully leased
- Total building size
104,167 SF


Key Facts
- Property type
Industrial space
- Available size
Fully leased
- Total building size
104,167 SF
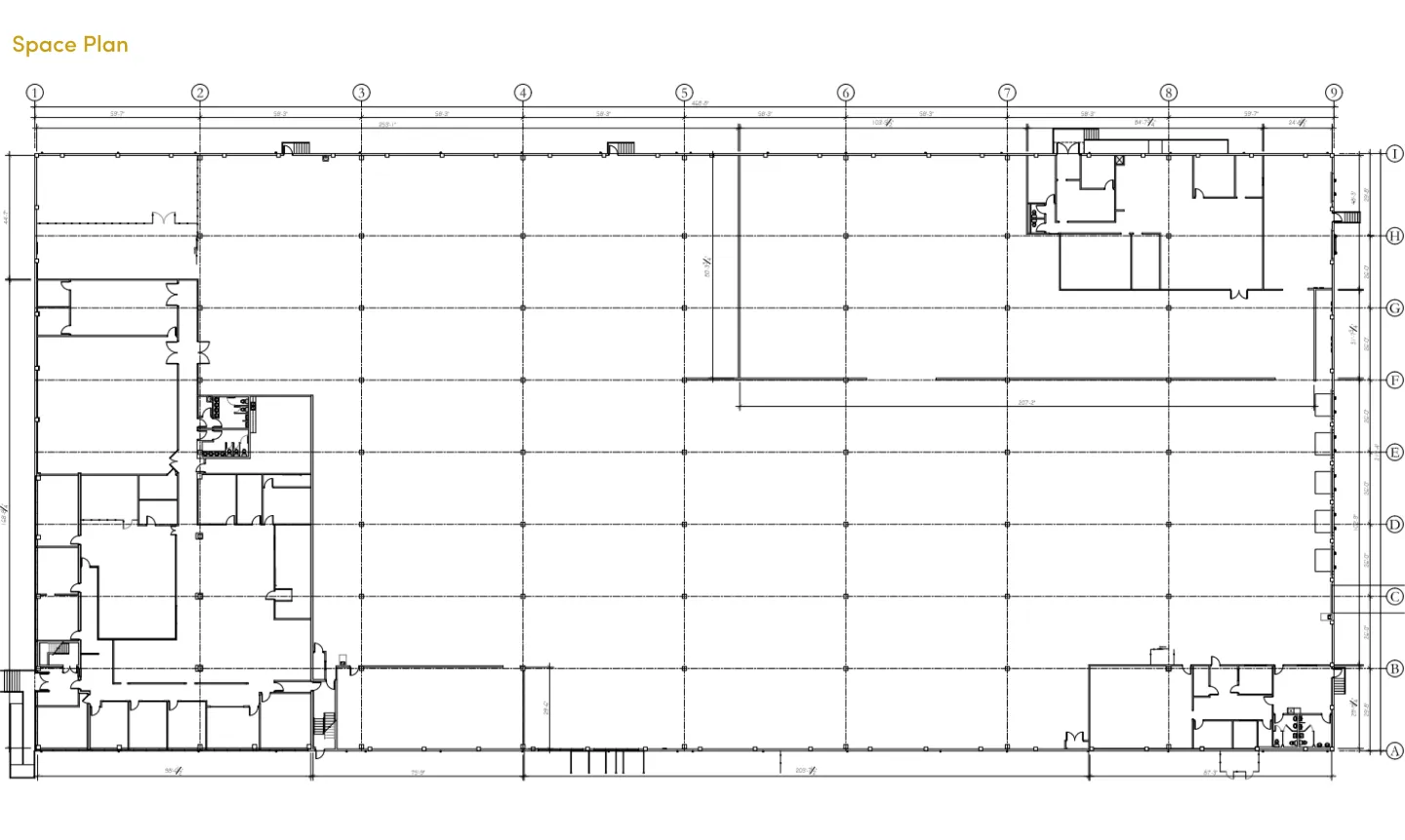
Property features
Newly renovated 2,719 SF first floor office
2,400 Amps of power
10,222 SF second floor office
New roof installed 2018
20' clear height
New LED lighting
8 dock high loading doors
Newly sealcoated parking lot and truck court
1 drive-in door
New exterior paint
69 surface parking spaces





