Key Facts
- Property type
Industrial space
- Available size
28,032 SF
- Total building size
28,032 SF


Key Facts
- Property type
Industrial space
- Available size
28,032 SF
- Total building size
28,032 SF
Property features
Ceiling Clear Height Min: 15´
Truck Court Depth: 60.0´
Auto Parking: 134
Year Renovated: 2014
Roof Type: Urethane foam roof coating
Lighting: LED
Site Coverage: 535%
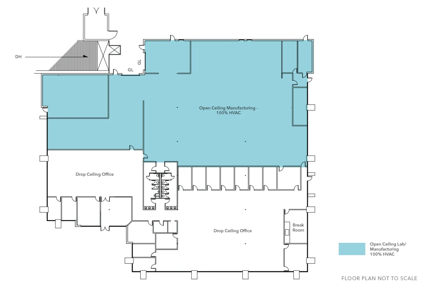
High quality R&D manufacturing facility
Outdoor sports court
Secured equipment pad
Parking ±3.3/1000
Large open lab with HVAC and power distribution
Dock and Grade level loading
100% HVAC
Showers and lockers
Power: to be verified, upgradeable to 2,000 amps @ 480V
New Roof
LED lighting in office areas
Photos and floorplan
Location
Within 10 miles
Total Population
1,055,852
Total Labor Force
440,312
Median Household Income
$152,399
Warehouse Employees
941
High school education or higher
70.9%
Transit
Bus, Lundy Avenue & McKay Drive
8 min walk – 0.4 miles





